CityLAB-UCLA recently hosted a design competition, titled “Small Lots, Big Impacts,” soliciting proposals for multi-family housing developments on under-utilized city-owned lots. Though DOLINA’s proposal was not selected as a winner, this prompt provided an valuable opportunity to rethink the possibilities for addressing the housing crisis in Los Angeles and beyond.

When considering the characteristics of single-family neighborhoods that make them desirable, we realized that one of them is the prominence of exterior circulation. The experience of walking past neighbors’ homes – seeing holiday decorations and gardens, waving hello and making small talk – are quite rare in a typical multi-family development, which often sacrifices humanity in the name of efficiency.





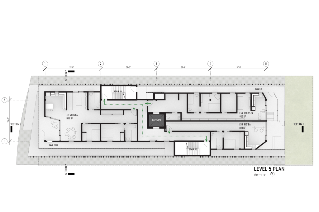
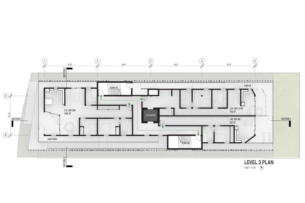
The residential units in Verde Village are organized into three-unit “pods” across two floors connected by exterior ramps. Each pod generally includes one unit of each type (1-, 2-, and 3-bedroom). This organization presents an opportunity for an ownership model that de-centers the nuclear family, and allows for a flexible multi-generational family occupancy. This model may also better serve blended families, “chosen” families, or other non-nuclear kinship structures.


The North and South elevations feature extruded aluminum screens arranged in a musical rhythm and equipped with planters for fire-resistive vegetation. These vegetated screens provide shade and privacy, offering residents an experience similar to that of living in a verdant forest canopy. The units are laid out with accessibility in mind, accommodating a range of mobility needs. In addition to family-oriented units, the proposal includes two live-work units ideal for creative work. The functional interior spaces below the exterior ramps provide opportunities for creative space usage, from storage to kids’ play zones to reading nooks.


This proposal sacrificed potential additional residential units for community amenities, which provide opportunities for work, recreation, and both formal and informal gatherings. The adjacency between co-working and play space is specifically beneficial for parents who work remotely, providing a hybrid space in which they can address professional obligations while minding their young kids if/when childcare is not available.


